新金宝

深圳市坪山排水有限公司
宣布时间:2021.07.14
浏览次数:1781 次

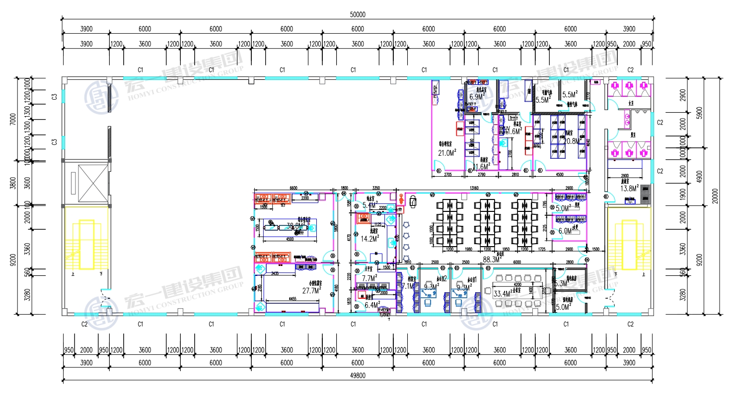
深圳市坪山排水有限公司是经深圳市坪山区人民政府批准,,,,由深圳市坪山区都会建设投资有限公司投资建设的国有企业,,,,建设于2019年5月,,,,注册资源金5000万元。。。深圳新金宝建设集团与深圳市坪山排水有限公司签署实验室设计与施工条约,,,,为水质检测孝顺一份实力。。。实验室涉及的领域包括理化领域。。。


项目面积:1300㎡

所在:深圳

签约时间:2021年



新金宝(中国游)有限公司官网

新金宝(中国游)有限公司官网

Copyright ? 2026 深圳新金宝科技集团 深圳新金宝实验科技有限公司      粤ICP备2021038609号
【网站地图】【sitemap】