新金宝

广东众生睿创
宣布时间:2020.08.12
浏览次数:1555 次

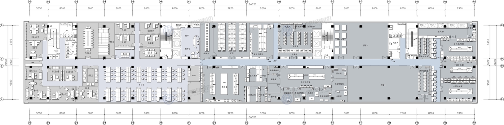
新金宝与广东众生药业股份公司实验室签署设计条约,,该项目主要内容是实验室妄想设计。。。广东众生药业股份公司实验室面积约3000平方米,,涵盖药物理化检测、处方剖析、药物合成等领域。。。


项目面积:3000㎡

所在:深圳

签约时间:2020年8月


新金宝(中国游)有限公司官网新金宝(中国游)有限公司官网新金宝(中国游)有限公司官网新金宝(中国游)有限公司官网新金宝(中国游)有限公司官网新金宝(中国游)有限公司官网新金宝(中国游)有限公司官网

Copyright ? 2026 深圳新金宝科技集团 深圳新金宝实验科技有限公司      粤ICP备2021038609号
【网站地图】【sitemap】